DEEPBLUE foldable house, with advanced folding technology, has completed about 80% of the pre-installation in the factory, folded and loaded into the container for transportation. After arriving at the site, expand the main structure of the house, simply install the furniture then it can be put into use.
Take a deep breath: only natural recyclable materials.
Fastest installation time: 1 week including furniture.
Be creative: flexible layouts for versatile purposes.
Move without stress: easy to ship by truck.
Operational comfort: lay it on any leveled base.
Basically, “House to Unfold”!
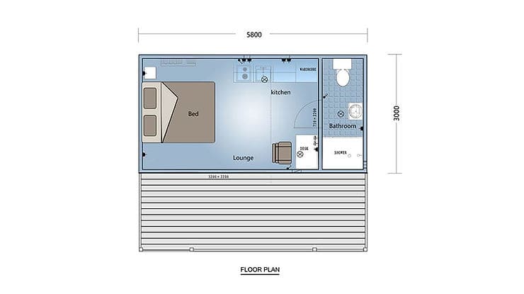
3m*58m one bedroom en suite.
1bedroom 1bathroom 1living area with kitchen
Big sliding door with veranda and WPC decking.
Light gauge steel frame system with PU panel insulation.




