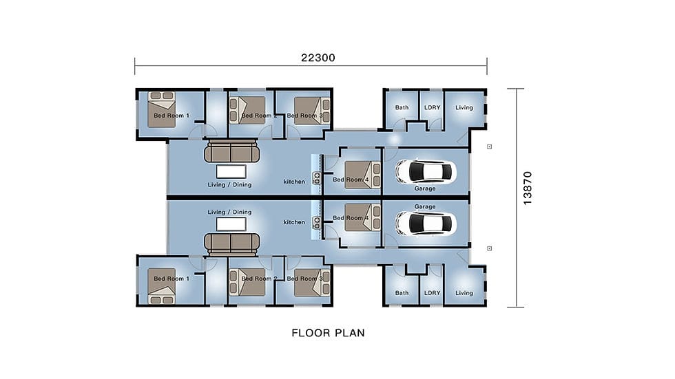
With a size of 22300 × 13870mm and an area of 258m², our kit homes are designed to cater to all your living needs. Supliyed with DEEPBLUE SMARTHOUSE, a leading building materials supplier, ensures that our homes are built with the latest in smart and sustainable materials.
Our homes include 8 spacious bedrooms, 4 living areas, 2 garages, and 2 bathrooms, providing ample space for families of all sizes. The open-plan living areas allow for easy entertainment and comfortable family living, while the bedrooms provide the necessary privacy for peaceful rest. The bathrooms are equipped with the latest in sustainable water-saving technology, ensuring that your home is eco-friendly while providing modern comfort.
DEEPBLUE SMARTHOUSE combines advanced technology and traditional craftsmanship to provide high-quality, modular steel houses. With 14 years of experience in the industry, DEEPBLUE has a strong reputation for delivering affordable and customizable homes. Each house is designed to meet the specific needs of each customer, with a variety of floor plans and interior finishes available. Whether you’re looking for a cozy, single-story cottage or a spacious two-story home, DEEPBLUE has you covered.
In addition to the affordability and customization, the light steel structure of DEEPBLUE’s houses also provides several advantages. The steel structure is durable, fire-resistant, and can withstand harsh weather conditions. The modular design makes the construction process fast and efficient, and the homes are easy to maintain and repair.
With a focus on sustainability, DEEPBLUE’s houses are also designed to be energy-efficient, with options for insulation, and double-paned windows.
DEEPBLUE SMARTHOUSE is committed to providing the best possible homes for its customers, with a focus on affordability, quality, and sustainability. Whether you’re looking for a new home for your family or a vacation getaway, DEEPBLUE has you covered.
Product parameters
| 01 | Name: | Kitset Homes |
| 02 | Size: | 22300 ×13870mm |
| 03 | Area: | 258m² |
| 04 | Include: | 8Bedroom, 4Living,2garage, 2Bath |
| 05 | Project location: | Australia |
Benefits of Cold-Formed Steel Framing
When it comes to framing materials for prefabricated structures, Cold-formed steel (CFS) stands out as the superior choice for several compelling reasons. CFS is:
- Precision Engineering: CFS is pre-engineered and can be cut to exact lengths, ensuring a perfect fit for your construction needs.
- Dimensional Stability:Unlike materials like wood or concrete, CFS remains dimensionally stable and doesn’t expand or contract with changes in moisture content, guaranteeing long-term structural integrity.
- Lightweight Efficiency: CFS is remarkably lightweight compared to traditional alternatives, making it easier to handle and transport, saving both time and resources.
- Weather-Resistant:CFS exhibits exceptional resilience. It won’t warp, split, crack, or creep when exposed to the elements, ensuring your structures endure the test of time.
- Sustainability:With a 100% recyclable nature, CFS is an eco-conscious choice that contributes to sustainable construction practices and a greener future.
- High Tensile Strength:CFS boasts impressive tensile strength, ensuring the structural reliability and longevity of your projects.
- Fire Safety: Non-combustible in nature, CFS serves as a valuable safeguard against fire accidents, prioritizing safety in your constructions.
Choose the advantages of Cold-formed steel framing for your next project and experience a new level of efficiency, durability, and sustainability in your construction endeavors.
Price
Please reach out to our sales team for pricing details.































