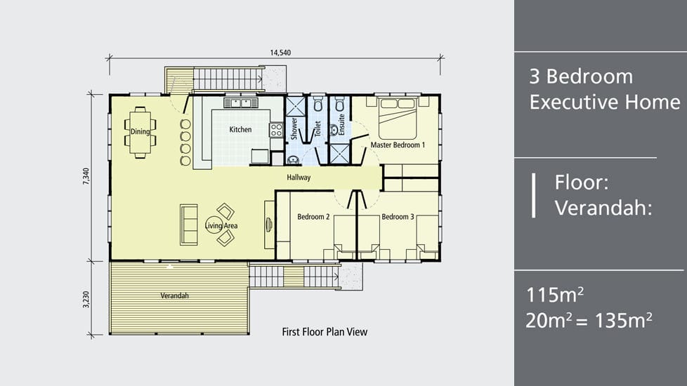
Introducing the DP-B-3, a stunning light steel prefab bungalow that boasts a spacious living room, modern kitchen, three comfortable bedrooms, and two stylish bathrooms. With an overall area of 115㎡ and a verandah measuring 20㎡, this beautiful bungalow is perfect for those seeking a comfortable and convenient living space.
Measuring 14540mm in length and 7340mm in width, the DP-B-3 is designed with both comfort and practicality in mind. Constructed using high-quality, durable materials, this bungalow is built to withstand even the toughest of weather conditions.
The living room provides ample space for entertaining guests or simply relaxing with family, while the kitchen can prepare delicious meals. Each of the three bedrooms is spacious and cozy, providing the perfect environment for a good night’s sleep. And with two elegantly designed bathrooms, you’ll never have to worry about waiting in line for your turn.
The verandah is the perfect spot to enjoy your morning coffee or simply soak up some sunshine. With 20㎡ of space, it’s the perfect place to relax and unwind.
DEEPBLUE SMARTHOUSE combines advanced technology and traditional craftsmanship to provide high-quality, modular steel houses. With 14 years of experience in the industry, DEEPBLUE has a strong reputation for delivering affordable and customizable homes. Each house is designed to meet the specific needs of each customer, with a variety of floor plans and interior finishes available. Whether you’re looking for a cozy, single-story cottage or a spacious two-story home, DEEPBLUE has you covered.
In addition to the affordability and customization, the light steel structure of DEEPBLUE’s houses also provides several advantages. The steel structure is durable, fire-resistant, and can withstand harsh weather conditions. The modular design makes the construction process fast and efficient, and the homes are easy to maintain and repair.
With a focus on sustainability, DEEPBLUE’s houses are also designed to be energy-efficient, with options for insulation, and double-paned windows.
DEEPBLUE SMARTHOUSE is committed to providing the best possible homes for its customers, with a focus on affordability, quality, and sustainability. Whether you’re looking for a new home for your family or a vacation getaway, DEEPBLUE has you covered.
DeepBlue SmartHouse is a Chinese company that specializes in designing and constructing prefab homes using light steel frame technology. Their one-stop solution caters to the needs of housing developers, builders, and owner-builders, providing services from design to construction.
Their mission is to provide efficient, sustainable, and cost-effective building solutions to their clients. They achieve this by using light steel frame technology, which enables faster construction, greater energy efficiency, and better durability in harsh weather conditions. DeepBlue SmartHouse is committed to quality and sustainability and incorporates eco-friendly materials and processes throughout the building process.
The DeepBlue SmartHouse team consists of experienced professionals in engineering, design, and sourcing. They work closely with clients to understand their specific needs and requirements, ensuring that each project is customized to meet their unique needs.
Product parameters
| 01 | Model: | DP-B-3 |
| 02 | Lenth: | 14540mm |
| 03 | Width: | 7340mm |
| 04 | Area: | 115㎡ |
| 05 | Verandah: | 20㎡ |
Benefits of Cold-Formed Steel Framing
When it comes to framing materials for prefabricated structures, Cold-formed steel (CFS) stands out as the superior choice for several compelling reasons. CFS is:
- Precision Engineering: CFS is pre-engineered and can be cut to exact lengths, ensuring a perfect fit for your construction needs.
- Dimensional Stability:Unlike materials like wood or concrete, CFS remains dimensionally stable and doesn’t expand or contract with changes in moisture content, guaranteeing long-term structural integrity.
- Lightweight Efficiency: CFS is remarkably lightweight compared to traditional alternatives, making it easier to handle and transport, saving both time and resources.
- Weather-Resistant:CFS exhibits exceptional resilience. It won’t warp, split, crack, or creep when exposed to the elements, ensuring your structures endure the test of time.
- Sustainability:With a 100% recyclable nature, CFS is an eco-conscious choice that contributes to sustainable construction practices and a greener future.
- High Tensile Strength:CFS boasts impressive tensile strength, ensuring the structural reliability and longevity of your projects.
- Fire Safety: Non-combustible in nature, CFS serves as a valuable safeguard against fire accidents, prioritizing safety in your constructions.
Choose the advantages of Cold-formed steel framing for your next project and experience a new level of efficiency, durability, and sustainability in your construction endeavors.
Price
Please reach out to our sales team for pricing details.






















